《空气能热水工程宝典》安装
发布时间:2015-09-03点击数:4591
“热泵热水器作为一种新兴制热水产品,其与电热水器、太阳能热水器的设计师完全不同的。那么,空气能工程安装应用注意什么呢?
一: 安装前必读
1、安装热泵热水器之前,请确认所在地区的电网电压与热水机组的要求是否相符,相关的电源容量或通载能力是否适合本机输入功率要求,详见机组上铭牌或安装使用说明书。
2、请务必正确安装漏电保护装置。电工接线时务必参照接线图;本产品与电网连接时,其连接的固定线路必须配有一个至少3mm触点开距的全极断开装置。
3、热水机组一定要可靠接地,严禁在无可靠接地情况下使用机组。严禁将接地线接在零线或自来水管上。
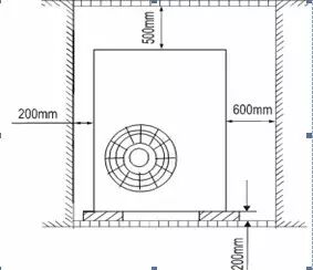
4、为获得更好的节能效果,主机应安装在空气流通良好的环境空间;请勿安装在周围有障碍物或其他不利于机组运行的地方;
5、请勿将机组安装在不便维修和保养的场所;严禁安装在有可能发生可燃气体泄漏或有腐蚀气体的地方;
6、严禁将手或任何工具插入热泵机组内,以免碰到风扇而造成意外事故或机组损坏。
7、水源一般要求使用自来水,如使用地下水或其他水源,请先咨询本公司专业技术人员,并对水源进行软化处理或沉淀过滤处理。
8、机组进水管处必须安装可拆卸式过滤器,并根据当地水质和实际使用情况定期进行清洗(一般2~3个月清洗一次);
9、在气温接近或低于0℃时,本机组会自动启动防冻功能,所以切勿使长时间断电。如果长期不使用热水器(如学校工程项目),则切断电源,并关闭各阀门,请务必将机组换热器内的水排干净,以防止换热器内的水结冰,将换热器胀裂。重新使用时请恢复各阀门至初始位。
10、所有接线工作施工完成后,须经仔细检查无误后,并确保主机水路畅通后,才可接通电源进行调试;
二: 安装前查看
1、水电条件检查
1)水质检查:双志商用热水机组仅用于市政供水区域使用。非市政用水区域因地下水、河流水、地表水水质情况复杂,,为避免因水箱盘管结垢而导致的系统加温能力减弱及水路堵塞的问题,经销商在安装机组前要求先做水质检测工作,根据水质检测笔的检测结果来决定机组的过滤装置和清洗频次。
水质测试笔
测试值
水质属性
解决方法
TDS笔
0-200
正常水质
每半年清洗一次
200-400
轻微结垢水质
每三个月清洗水箱、套管
400-600
较强结垢水质
需要加装一般软水过滤装置
600以上
强水垢水质
不易使用或加装高效软水过滤装置
2)水压检查:供水水压有保证,水压低于0.1MPa,需要增加冷水增压泵。
3)水流量检查:供水管径和流量须满足补水流量要求(直热式尤其重要)
4)电源线径:电源总线线径必须符合国家标准,并且承受机组最大运行电流的1.5倍以上,确保安全无隐患。
5)电压检查:为避免由于电压不稳而导致机组电路主板损坏、压缩机损坏、变压器损坏、机组不运行等故障,测试电压在198V--231V之间,电压波动小,属于适用电压,直接安装机组即可,测试电压超出198V--231V范围内的或者测试电压不稳波动较大的需要安装稳压器,功率不小于机组最大功率的1.5倍。
2、安装场地和基础检查
1)机组
·主机组应安装在空气流通畅顺、无腐蚀气体和灰沙,落叶沾染物易聚集的地方,避免含油,含易燃易爆气体,含硫化物等腐蚀性成分较多及有高频设备的场所。
·安装位置应确保进出风口畅通无阻(进出风口如下图所示),要确保下图中箭头方向所示的离障碍物之间距离。
俯视
侧视
侧吹


顶吹


·上面有障碍物时,需加排风管将冷气排走(如右图);多台并排放置时,机组间需保持一定间距,建议大于1M
·其出风口应避开迎风方向,顶出风的机组一般是不需要遮挡物的,电机和其他内部元部件都做了防水处理,如在风雪特别大的地区,为了防止大雪把主机的冷凝器或风叶给封堵起来,也需做一定的防护物。
·机组安装基础可以为混凝土结构,也可以用钢制托架,加防震橡胶垫,基础表面应平整。
·在地面上安装时,底脚应加高,防止大雨季节积水进入。
·为降低噪声对周边居民的影响,避免机组安装在凹处。
·安装位置附近设置排水沟和排水口,能方便地进行排水。

2)水箱
·水箱应尽量放置在环境温度0℃以上的地方。
·可安装在室外也可放置在楼顶(根据水箱的大小和建筑物的承重能力等因素而定)。
·水箱安装位置一般需设置混凝土底座并固定在有建筑横梁或柱梁的地方。
·水箱尽量靠近客户主用水点,以减少管路热量损失
·水箱安装区域,在区域内必须有地漏口或排水口,便于水箱排空操作及防止水溢出造成损失。
三:安装准备工作
1、准备安装工具
为给用户提供专业的安装服务,树立良好的口碑,建议给安装人员配备安装工具箱,工具箱内应有如下工具:钳型万用表、内六角扳手、活动扳手、组合压力表、水质检测笔、冲击钻、水平尺、剪刀、老虎钳、尖嘴钳、一字头螺丝刀、十字头螺丝刀、水压压力表、PPR热熔器、穿墙钻(孔芯钻)。
对于维修操作还需要割管器、扩管器,真空泵等。
2、检查产品和配件
1)打开木包装视检,查看产品是否完整、有无碰伤、刮伤、撞扁、脏污等不良现象;
2)检查机组外观及机内管路系统是否在运输过程中遭到损坏(如有油污,即可能存在漏氟);
3)检查机组线路是否出现松动;
4)检查配件型号、数量是否满足预定要求;
5)清点随机配件和安装附件是否齐全,例如:说明书、保修卡、合格证、线控器等。
四:进场施工
1、材料存放
·管道存放时两端要封口并用塑料袋包好,保持整齐整洁;塑料袋拆封未使用完前两端用赌帽塞好。
·水泵、铜件等最后再送到现场,防止被偷盗。

2、机组吊装
·根据起吊高度选择吊车,最好在水箱和主机一起运到现场,节省吊车、叉车台班费用。
·机组吊装时,起吊钢索强度要
比机组的重量大3倍。钢索与机身接触部位要垫加至少50mm的衬垫,以防损坏机组。起吊角度大于60°,吊装时人员勿站机组下方。在吊装前要确认基础已做好并检验基础强度是否够(水泥是否干透)
3、基础与减震
·主机和水箱基础要有足够的承载能力,地面强度坚固,通风顺畅,散热良好,有足够的维修操作空间。
·常用水泥浇筑或槽钢,工字钢,高度应能防止积雪将机组底部淹没(推荐30-50公分)。

·主机安装必须水平,主机底脚须安装减震垫,减震垫厚度及硬度要符合要求,样式根据安装机型及安装现场合理选择。对一些小型工程,可以用废旧轮胎的橡胶。
4、水箱制作与安装
1)水箱选择与放置

水箱内胆采用SUS304不锈钢材料,内外胆之间采用聚氨脂发泡保温层,发泡层厚度≥50mm。能够提供足够的安装和维护空间,支撑面平坦且能够承受水箱满负荷重量。
2)水位控制
水箱顶部预留DN20左右孔,孔位要远离桶壁。用三根1.5-2.5平方带皮硬导线,一端连接M8*80大小的不锈钢螺栓,分别放入水箱上(控制水箱最高水位处)、中(控制水箱限温补水高度)、下(水箱底部)三个高度处,另一端分别连接主机的水位输出信号上水位、下水位、公共端。
3)水位检测管
用户可自行设定水位检测管道,便于查看水位高度(用透明塑料管或玻璃管)。
4)水箱温度传感器安装
水箱温度传感器不能直接放置在水中,以免结垢损坏,水箱预留Φ8盲管,位置应接近热水供水口处,盲管伸入到水箱内200mm左右。入水箱未预留盲管,可用铜管制作一根盲管从水箱顶部插入,安装水温传感器时将传感器伸入盲管里面在用导热硅胶或保温材料封上。
5、热水管管路安装
·管道连接时,要清洁管材插口和管件承口表面;
·量好所需尺寸后下料,在管材连接端,应做好插入深度标记;
·用热熔器对所要连接的管材和管件进行加热,热熔时需要控制好时间和温度;
·加热完成后迅速将管材平稳、均匀的沿直线插入管件中,同时注意角度,待三分钟后才放开手;
水管连接后须进行压力试验
·热熔连接管道应在接口完成超过24小时后进行水压试验;
·加压宜用手压泵,泵压测量压力的压力表应设置在管道系统的最低点(如不在最低点应折算出几何高压压力差),压力表精度应为0.01MPa;
·管道注满水后,先排出管道内的空气,封堵各排气出口,进行水密性检查;
·缓慢升压,升压时间不小于10min,升至规定试验压力,(在30分钟内,允许2次补压至规定试验压力),稳压1小时,检查应五渗漏,测试压力降不得超过0.03Mpa;
·在设计工作压力的1.15倍状态下,稳压2小时,压力降不超过0.03Mpa,同时检查无渗漏即为水压试验合格;
·管道支架间距应符合相关要求(正常在1.5米一个),不宜过大,布置要规范合理,横平竖直。
·在小型工程中,且管路较短,可用经验目测法检查是否连接完好即:将水箱及管路内充满水,观察。
·焊接和螺纹连接处是否有水渍,如无渗漏现象则管路连接正常;
·在试压或确认管路完好试运行后再进行管路保温;
6、水泵选择与安装
1)水泵安装
·水泵应安装水平,减震螺母不应拧紧,预留丝口3-5mm;
·安装完毕后应在水泵顶部加装防雨保护;
·水泵前后必须使用软管连接,以防水泵震动和噪音;软接品种较多,根据施工现场选择合适软接。

2)热水循环泵选择(参见 3.6 )
选择水泵时需同时满足流量和扬程要求;
3)冷水增压泵选择
系统进水压力设计为0.2-0.4Mpa,当进水压力低于0.1-0. 2Mpa或水压频繁波动时则需选用冷水增压泵,若自来水压力足够大且水压稳定时则不需要此泵,若自来水压力大于0.4Mpa时,须加减压阀,流量根据水箱大小选取;
4)热水增压泵选择
热水增压泵主要考虑扬程和流量,水泵流量为高峰用水时系统水流量的1.3倍,热水泵扬程克服热水箱出水口与末端管路最高处高度差Z管路L扬程阻力(0.05L)和局部阻力(一般5m),保证系数k取(1.1-1.2);

7、管道部件安装
1)排气阀
2)过滤器
3)水流开关
4)止回阀
5)压力表
8、系统保温
管道须做保温处理。
绝热保温层:使用材料为聚氨脂、岩棉、橡塑等;室外部分保温层:须做保护层,一般使用镀锌铁皮、薄铝合金板、不锈钢板和防紫外线扎带;、

9、电气工程、信号线连接及防雷击保护
1)设备供电必须设置专用电源线路,电源电压允许波动范围为额定电压的10%;
2)电源容量必须足够,电缆线径满足要求,有相对应的保护断路装置,接地必须可靠;
型号
电源线
循环水泵线
辅助电加热线
供水或回水泵线
供水或回水电磁阀线
水位线
感温头线
2P
3*2.5㎜2
3*1.5㎜2
3*4㎜2
3*1.5㎜2
2*0.35㎜2
2*0.35㎜2
2*0.35㎜2
3P
3*4㎜2
3*1.5㎜2
3*4㎜2
3*1.5㎜2
2*0.35㎜2
2*0.35㎜2
2*0.35㎜2
5P
5*4㎜2
4*1.5㎜2
4*4㎜2
4*1.5㎜2
2*0.35㎜2
2*0.35㎜2
2*0.35㎜2
10P
5*6㎜2
4*2.5㎜2
4*6㎜2
4*2.5㎜2
2*0.35㎜2
2*0.35㎜2
2*0.35㎜2
20P
5*10㎜2
4*2.5㎜2
4*10㎜2
4*2.5㎜2
2*0.35㎜2
2*0.35㎜2
2*0.35㎜2
备注:商标电线规格为双志建议的最低配置。
3)供电电源线要使用线鼻子连接;
4)线控器与主机之间通讯需屏蔽线连接;
5)水流开关、冷水增压泵、循环泵、电加热等外接负载可直接与对应主机联动,电流超过2A的需外加节流接触器控制;
6)若用户需热水管网回水时需加电磁阀控制;
7)线控器通讯线连接需与强电分开,安装位置应该摆放在不易受干扰的地方;
8)单独制作控制柜,热水工程单独引电源,集中放置各交流接触器、漏电保护器等,线路连接应使用电气PVC套管保护;
9)水箱、机组与槽钢支架应作防雷处理;
文章来自本公众号资源,未经授权不得转载。如希望转载,请直接在后台留言。未经授权转载的,我们将按照《微信公众平台关于抄袭行为处罚规则》进行侵权投诉。欢迎您分享到朋友圈。
感谢一下品牌对《空气能热水工程宝典》印刷版的支持!

销售总部地址:昆明市官渡区小板桥镇中闸村委会七甲一组
生产地址:昆明市官渡区大板桥镇文强路/官渡工业园国际印刷包装城
销 售 电 话:0871-67322415/68243023
销 售 手 机:13888202015 18860777620 15969499389
Q Q:1921259194
传 真:0871-67322471
长按→识别二维码→关注
1、安装热泵热水器之前,请确认所在地区的电网电压与热水机组的要求是否相符,相关的电源容量或通载能力是否适合本机输入功率要求,详见机组上铭牌或安装使用说明书。
2、请务必正确安装漏电保护装置。电工接线时务必参照接线图;本产品与电网连接时,其连接的固定线路必须配有一个至少3mm触点开距的全极断开装置。
3、热水机组一定要可靠接地,严禁在无可靠接地情况下使用机组。严禁将接地线接在零线或自来水管上。
4、为获得更好的节能效果,主机应安装在空气流通良好的环境空间;请勿安装在周围有障碍物或其他不利于机组运行的地方;
5、请勿将机组安装在不便维修和保养的场所;严禁安装在有可能发生可燃气体泄漏或有腐蚀气体的地方;
6、严禁将手或任何工具插入热泵机组内,以免碰到风扇而造成意外事故或机组损坏。
7、水源一般要求使用自来水,如使用地下水或其他水源,请先咨询本公司专业技术人员,并对水源进行软化处理或沉淀过滤处理。
8、机组进水管处必须安装可拆卸式过滤器,并根据当地水质和实际使用情况定期进行清洗(一般2~3个月清洗一次);
9、在气温接近或低于0℃时,本机组会自动启动防冻功能,所以切勿使长时间断电。如果长期不使用热水器(如学校工程项目),则切断电源,并关闭各阀门,请务必将机组换热器内的水排干净,以防止换热器内的水结冰,将换热器胀裂。重新使用时请恢复各阀门至初始位。
10、所有接线工作施工完成后,须经仔细检查无误后,并确保主机水路畅通后,才可接通电源进行调试;
1、水电条件检查
1)水质检查:双志商用热水机组仅用于市政供水区域使用。非市政用水区域因地下水、河流水、地表水水质情况复杂,,为避免因水箱盘管结垢而导致的系统加温能力减弱及水路堵塞的问题,经销商在安装机组前要求先做水质检测工作,根据水质检测笔的检测结果来决定机组的过滤装置和清洗频次。
|
水质测试笔 |
测试值 |
水质属性 |
解决方法 |
|
TDS笔 |
0-200 |
正常水质 |
每半年清洗一次 |
|
200-400 |
轻微结垢水质 |
每三个月清洗水箱、套管 | |
|
400-600 |
较强结垢水质 |
需要加装一般软水过滤装置 | |
|
600以上 |
强水垢水质 |
不易使用或加装高效软水过滤装置 |
2)水压检查:供水水压有保证,水压低于0.1MPa,需要增加冷水增压泵。
3)水流量检查:供水管径和流量须满足补水流量要求(直热式尤其重要)
4)电源线径:电源总线线径必须符合国家标准,并且承受机组最大运行电流的1.5倍以上,确保安全无隐患。
5)电压检查:为避免由于电压不稳而导致机组电路主板损坏、压缩机损坏、变压器损坏、机组不运行等故障,测试电压在198V--231V之间,电压波动小,属于适用电压,直接安装机组即可,测试电压超出198V--231V范围内的或者测试电压不稳波动较大的需要安装稳压器,功率不小于机组最大功率的1.5倍。
2、安装场地和基础检查
1)机组
·主机组应安装在空气流通畅顺、无腐蚀气体和灰沙,落叶沾染物易聚集的地方,避免含油,含易燃易爆气体,含硫化物等腐蚀性成分较多及有高频设备的场所。
·安装位置应确保进出风口畅通无阻(进出风口如下图所示),要确保下图中箭头方向所示的离障碍物之间距离。
|
俯视 |
侧视 | |
|
侧吹 |
| |
|
顶吹 |
|
|
·上面有障碍物时,需加排风管将冷气排走(如右图);多台并排放置时,机组间需保持一定间距,建议大于1M
·其出风口应避开迎风方向,顶出风的机组一般是不需要遮挡物的,电机和其他内部元部件都做了防水处理,如在风雪特别大的地区,为了防止大雪把主机的冷凝器或风叶给封堵起来,也需做一定的防护物。
·机组安装基础可以为混凝土结构,也可以用钢制托架,加防震橡胶垫,基础表面应平整。
·在地面上安装时,底脚应加高,防止大雨季节积水进入。
·为降低噪声对周边居民的影响,避免机组安装在凹处。
·安装位置附近设置排水沟和排水口,能方便地进行排水。
2)水箱
·水箱应尽量放置在环境温度0℃以上的地方。
·可安装在室外也可放置在楼顶(根据水箱的大小和建筑物的承重能力等因素而定)。
·水箱安装位置一般需设置混凝土底座并固定在有建筑横梁或柱梁的地方。
·水箱尽量靠近客户主用水点,以减少管路热量损失
·水箱安装区域,在区域内必须有地漏口或排水口,便于水箱排空操作及防止水溢出造成损失。
1、准备安装工具
为给用户提供专业的安装服务,树立良好的口碑,建议给安装人员配备安装工具箱,工具箱内应有如下工具:钳型万用表、内六角扳手、活动扳手、组合压力表、水质检测笔、冲击钻、水平尺、剪刀、老虎钳、尖嘴钳、一字头螺丝刀、十字头螺丝刀、水压压力表、PPR热熔器、穿墙钻(孔芯钻)。
对于维修操作还需要割管器、扩管器,真空泵等。
2、检查产品和配件
1)打开木包装视检,查看产品是否完整、有无碰伤、刮伤、撞扁、脏污等不良现象;
2)检查机组外观及机内管路系统是否在运输过程中遭到损坏(如有油污,即可能存在漏氟);
3)检查机组线路是否出现松动;
4)检查配件型号、数量是否满足预定要求;
5)清点随机配件和安装附件是否齐全,例如:说明书、保修卡、合格证、线控器等。
1、材料存放
·管道存放时两端要封口并用塑料袋包好,保持整齐整洁;塑料袋拆封未使用完前两端用赌帽塞好。
·水泵、铜件等最后再送到现场,防止被偷盗。
2、机组吊装
·根据起吊高度选择吊车,最好在水箱和主机一起运到现场,节省吊车、叉车台班费用。
·机组吊装时,起吊钢索强度要
比机组的重量大3倍。钢索与机身接触部位要垫加至少50mm的衬垫,以防损坏机组。起吊角度大于60°,吊装时人员勿站机组下方。在吊装前要确认基础已做好并检验基础强度是否够(水泥是否干透)
3、基础与减震
·主机和水箱基础要有足够的承载能力,地面强度坚固,通风顺畅,散热良好,有足够的维修操作空间。
·常用水泥浇筑或槽钢,工字钢,高度应能防止积雪将机组底部淹没(推荐30-50公分)。
·主机安装必须水平,主机底脚须安装减震垫,减震垫厚度及硬度要符合要求,样式根据安装机型及安装现场合理选择。对一些小型工程,可以用废旧轮胎的橡胶。
4、水箱制作与安装
1)水箱选择与放置
水箱内胆采用SUS304不锈钢材料,内外胆之间采用聚氨脂发泡保温层,发泡层厚度≥50mm。能够提供足够的安装和维护空间,支撑面平坦且能够承受水箱满负荷重量。
2)水位控制
水箱顶部预留DN20左右孔,孔位要远离桶壁。用三根1.5-2.5平方带皮硬导线,一端连接M8*80大小的不锈钢螺栓,分别放入水箱上(控制水箱最高水位处)、中(控制水箱限温补水高度)、下(水箱底部)三个高度处,另一端分别连接主机的水位输出信号上水位、下水位、公共端。
3)水位检测管
用户可自行设定水位检测管道,便于查看水位高度(用透明塑料管或玻璃管)。
4)水箱温度传感器安装
水箱温度传感器不能直接放置在水中,以免结垢损坏,水箱预留Φ8盲管,位置应接近热水供水口处,盲管伸入到水箱内200mm左右。入水箱未预留盲管,可用铜管制作一根盲管从水箱顶部插入,安装水温传感器时将传感器伸入盲管里面在用导热硅胶或保温材料封上。
5、热水管管路安装
·管道连接时,要清洁管材插口和管件承口表面;
·量好所需尺寸后下料,在管材连接端,应做好插入深度标记;
·用热熔器对所要连接的管材和管件进行加热,热熔时需要控制好时间和温度;
·加热完成后迅速将管材平稳、均匀的沿直线插入管件中,同时注意角度,待三分钟后才放开手;
水管连接后须进行压力试验
·热熔连接管道应在接口完成超过24小时后进行水压试验;
·加压宜用手压泵,泵压测量压力的压力表应设置在管道系统的最低点(如不在最低点应折算出几何高压压力差),压力表精度应为0.01MPa;
·管道注满水后,先排出管道内的空气,封堵各排气出口,进行水密性检查;
·缓慢升压,升压时间不小于10min,升至规定试验压力,(在30分钟内,允许2次补压至规定试验压力),稳压1小时,检查应五渗漏,测试压力降不得超过0.03Mpa;
·在设计工作压力的1.15倍状态下,稳压2小时,压力降不超过0.03Mpa,同时检查无渗漏即为水压试验合格;
·管道支架间距应符合相关要求(正常在1.5米一个),不宜过大,布置要规范合理,横平竖直。
·在小型工程中,且管路较短,可用经验目测法检查是否连接完好即:将水箱及管路内充满水,观察。
·焊接和螺纹连接处是否有水渍,如无渗漏现象则管路连接正常;
·在试压或确认管路完好试运行后再进行管路保温;
6、水泵选择与安装
1)水泵安装
·水泵应安装水平,减震螺母不应拧紧,预留丝口3-5mm;
·安装完毕后应在水泵顶部加装防雨保护;
·水泵前后必须使用软管连接,以防水泵震动和噪音;软接品种较多,根据施工现场选择合适软接。
2)热水循环泵选择(参见 3.6 )
选择水泵时需同时满足流量和扬程要求;
3)冷水增压泵选择
系统进水压力设计为0.2-0.4Mpa,当进水压力低于0.1-0. 2Mpa或水压频繁波动时则需选用冷水增压泵,若自来水压力足够大且水压稳定时则不需要此泵,若自来水压力大于0.4Mpa时,须加减压阀,流量根据水箱大小选取;
4)热水增压泵选择
热水增压泵主要考虑扬程和流量,水泵流量为高峰用水时系统水流量的1.3倍,热水泵扬程克服热水箱出水口与末端管路最高处高度差Z管路L扬程阻力(0.05L)和局部阻力(一般5m),保证系数k取(1.1-1.2);
7、管道部件安装
1)排气阀
2)过滤器
3)水流开关
4)止回阀
5)压力表
8、系统保温
管道须做保温处理。
绝热保温层:使用材料为聚氨脂、岩棉、橡塑等;室外部分保温层:须做保护层,一般使用镀锌铁皮、薄铝合金板、不锈钢板和防紫外线扎带;、
9、电气工程、信号线连接及防雷击保护
1)设备供电必须设置专用电源线路,电源电压允许波动范围为额定电压的10%;
2)电源容量必须足够,电缆线径满足要求,有相对应的保护断路装置,接地必须可靠;
|
型号 |
电源线 |
循环水泵线 |
辅助电加热线 |
供水或回水泵线 |
供水或回水电磁阀线 |
水位线 |
感温头线 |
|
2P |
3*2.5㎜2 |
3*1.5㎜2 |
3*4㎜2 |
3*1.5㎜2 |
2*0.35㎜2 |
2*0.35㎜2 |
2*0.35㎜2 |
|
3P |
3*4㎜2 |
3*1.5㎜2 |
3*4㎜2 |
3*1.5㎜2 |
2*0.35㎜2 |
2*0.35㎜2 |
2*0.35㎜2 |
|
5P |
5*4㎜2 |
4*1.5㎜2 |
4*4㎜2 |
4*1.5㎜2 |
2*0.35㎜2 |
2*0.35㎜2 |
2*0.35㎜2 |
|
10P |
5*6㎜2 |
4*2.5㎜2 |
4*6㎜2 |
4*2.5㎜2 |
2*0.35㎜2 |
2*0.35㎜2 |
2*0.35㎜2 |
|
20P |
5*10㎜2 |
4*2.5㎜2 |
4*10㎜2 |
4*2.5㎜2 |
2*0.35㎜2 |
2*0.35㎜2 |
2*0.35㎜2 |
备注:商标电线规格为双志建议的最低配置。
3)供电电源线要使用线鼻子连接;
4)线控器与主机之间通讯需屏蔽线连接;
5)水流开关、冷水增压泵、循环泵、电加热等外接负载可直接与对应主机联动,电流超过2A的需外加节流接触器控制;
6)若用户需热水管网回水时需加电磁阀控制;
7)线控器通讯线连接需与强电分开,安装位置应该摆放在不易受干扰的地方;
8)单独制作控制柜,热水工程单独引电源,集中放置各交流接触器、漏电保护器等,线路连接应使用电气PVC套管保护;
9)水箱、机组与槽钢支架应作防雷处理;
文章来自本公众号资源,未经授权不得转载。如希望转载,请直接在后台留言。未经授权转载的,我们将按照《微信公众平台关于抄袭行为处罚规则》进行侵权投诉。欢迎您分享到朋友圈。
感谢一下品牌对《空气能热水工程宝典》印刷版的支持!
销售总部地址:昆明市官渡区小板桥镇中闸村委会七甲一组
生产地址:昆明市官渡区大板桥镇文强路/官渡工业园国际印刷包装城
销 售 电 话:0871-67322415/68243023
销 售 手 机:13888202015 18860777620 15969499389
Q Q:1921259194
传 真:0871-67322471
长按→识别二维码→关注